Karten und Pläne

Prospekt GEWOFAG 1978
mit Haustypen und Grundrissen

PDF

Bebauungsplan
und Festsetzung
Nr. 64/73

PDF

Grünordnungsplan
und Festsetzung

PDF

Haustypen
Übersicht Siedlung

PDF

Wintergärten
Plan und Festetzung

PDF

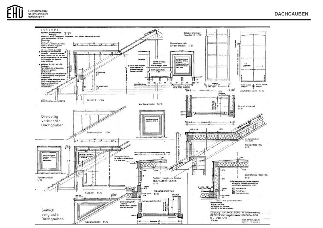
Dachgauben
Plan und Festetzung

PDF

EHU-Plan
mit Flur-Nr.

PDF

EHU-Plan
Gemeinschaftsflächen

PDF

EHU-Plan
Neordnung Parkflächen
(ehemals "Reserviert für Kleingärtner")

PDF

Open-Map
mit Haus-Nr.

PDF

Link

Verstärkerstationen
EHU

PDF

Funde
Ausgrabungen

PDF

Luftbild
Google-Maps

PDF

Link